Terreno à venda em Tondela
Terreno em Tondela com 1 267 m²
Tondela e Nandufe











































500 000 €
1 267 m²
- -
- -
- -
- -
NC
Descrição
*3 Lotes de Terreno para Venda* 🏡
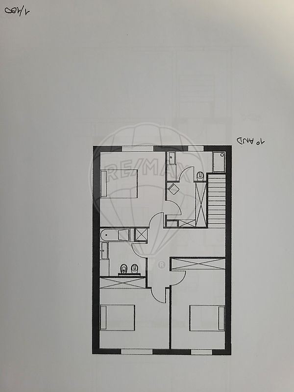
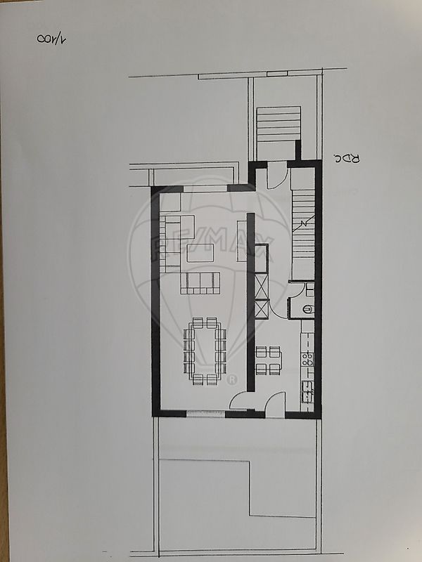
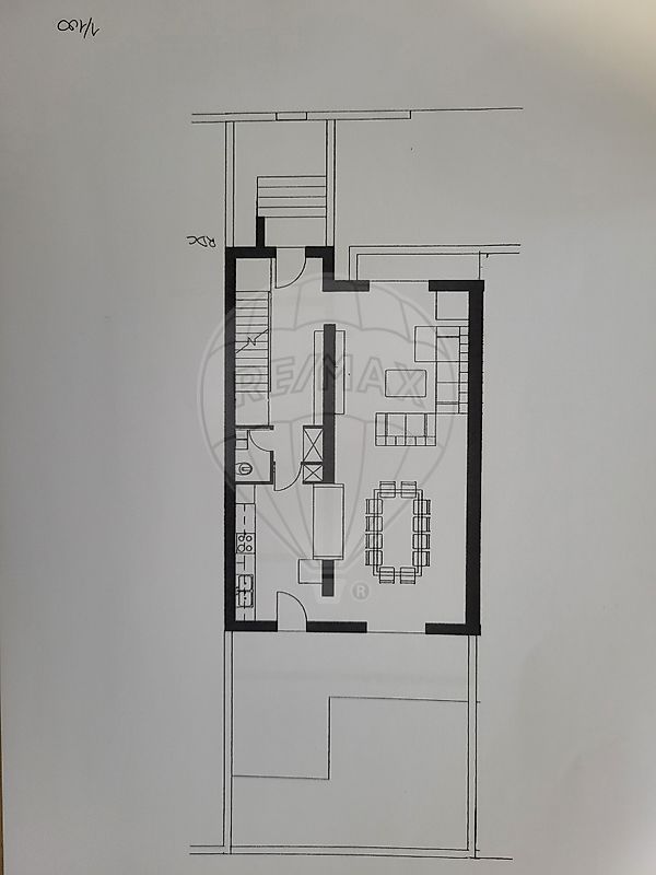
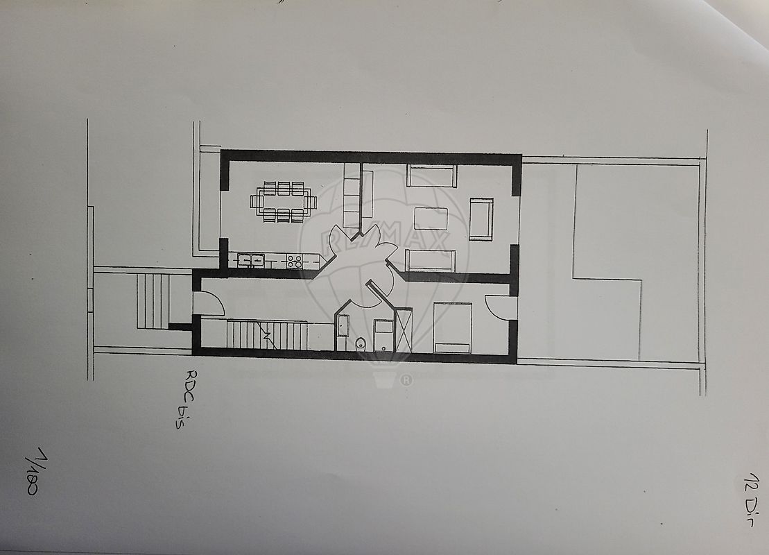
Bem localizado no centro da cidade de Tondela, vai encontrar estes *3 lotes de terreno urbano* para construção com projecto pré aprovado para *17 fogos habitacionais*.
Descubra uma oportunidade *única de investimento* no coração de Tondela! Este *magnífico terreno, composto por 3 lotes, está à venda e já possui um projeto pré aprovado para a construção de um **vibrante complexo habitacional. Idealmente localizado, a poucos passos de escolas, central de camionagem, comércio, hospital e centro de saúde, junta de freguesia e GNR, bem no centro da cidade, este **espaço* é perfeito para quem procura *qualidade de vida* e conveniência.
O projeto inclui a construção (num dos lotes) de um *moderno prédio* com 13 apartamentos, oferecendo um design contemporâneo e funcional, ideal para *famílias* ou *jovens profissionais. Além disso, **duas moradias geminadas* (em cada dos restantes lotes) estão previstas, proporcionando *opções diversificadas* para diferentes estilos de vida.
Se é *construtor, este terreno não é apenas uma oportunidade de investimento, mas uma hipótese de contribuir para a **transformação* e desenvolvimento da cidade. Aproveite e venha fazer parte de uma Tondela em crescimento, 🌍 onde *conforto* e *acessibilidade* se encontram. Não perca a oportunidade de realizar um projeto que pode deixar uma *marca duradoura* na cidade, a sua! ✨🏢
Venha conhecer este *espaço* que promete ser um verdadeiro lar para muitas *familias, nesta cidade que se advinha cada vez mais **moderna, com mais gente, onde a procura por habitação é cada vez maior e mais **rentável*! 🌆
Este anuncio é para os lotes *11, 12 e 13* em conjunto, podendo comprar os lotes *individualmente*.
Entre em contato para mais informações.
Detalhes
Detalhes energéticos

Mapa




